It will be an order. The delivery date is 3-7 business days.
※ Delivery time may be delayed due to manufacturer order status.
Pure domestic high performance sakura material rack
Each product of the audio rack OS series and OSW series uses cherry blossom plywood on the shelf board, and it is a high-performance rack produced in Japan using solid material of Asada cherry blossoms, which is hard and strong.

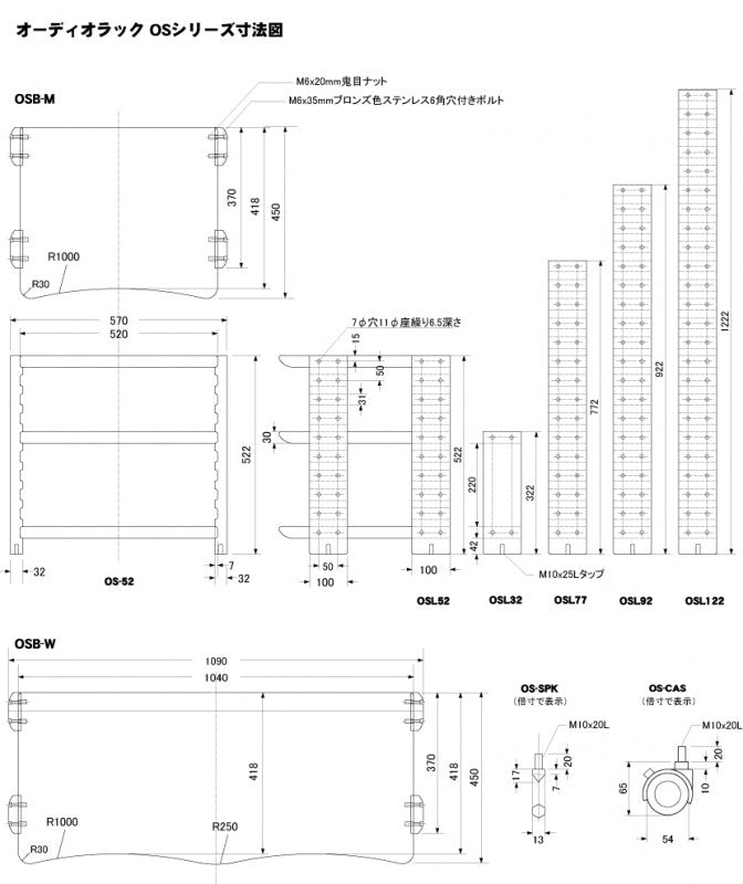
30mm thick cherry blossom plywood is used for the shelf board, 32mm thick solid material of asada cherry blossom is used for the prop, the overall height is 922mm, the shelf board can be up and down at 50mm interval.

The inner size of the shelf board is 506 (W) 450 (D), and most standard size audio equipment can be stored. Because the strength is large, record players can also be installed on the top plate. The standard specification is 4 shelves, but if you purchase an OSB-M shelf board unit sold separately, you can increase the number of steps.
The assembly is assembled with 8 screws per step, and the load is taken with a screw if the equipment to be loaded is light, and when it becomes heavy, the load load is increased because it is taken by the groove of the prop. The finish has the same urethane coating as luxury furniture, so it does not change due to long-term use. The side and rear of the shelf board are not partitioned, so heat dissipation effect is sufficient.
60 kg per step is cleared with room. The height of the shelf board can be easily changed at 50mm intervals, allowing for free layout. Also, wiring work is easier.
We recommend using a separate spike pin for carpeted rooms. We also have casters. The material of the spike is cut out of brass and the height is 17mm higher when used.
The caster adopts the main body of aluminum die cast, the strength is high and the load load is 200kg with 4 pieces. The height is 65mm higher when used.
Shelf Board Size | W520xD450xH30mm |
---|---|
Column Length | 922mm |
Overall Size | W570xD450xH922mm |
Weight | 26.8kg |






